Appearance
GQP-P-08 廠區管理程序
文件修訂履歷
| 版次 | 日期 | 文件名稱 | 制訂人 |
|---|---|---|---|
| 第1版 | 2026-04-13 | 廠區管理程序 | 葉嘉岑 |
簽核紀錄
| 角色 | 姓名 | 日期 |
|---|---|---|
| 制訂人 | 葉嘉岑 | 2026-04-13 |
| 覆核人 | 呂盈嬅 | 2026-04-13 |
| 核定人 | 潘芸榕 | 2026-04-13 |
- 目的:確保使廠房各項設施能夠發揮功能,符合產品品質要求。
- 範圍:凡廠內與產品品質之相關廠房設施均屬之。規劃製造區內作業場所包含一般作業區、管制作業區等空間之人流、物流區域。
- 定義:
- 廠區:指化妝品之製造、充填與包裝之作業處所。
- 一般作業區:辦公區、員工餐廳、休息室、廁所、外包裝區。
- 潔淨作業區(關鍵作業區):製造區(包含秤料區)、充塡區、潔淨走道、半成品室、洗滌區、洗瓶區。
- 管制作業區:包裝作業區、純水系統、空調系統等支援系統機房區、倉儲區、留樣區、品管實驗室。
- 權責:品管室、生產部。
- 作業說明:
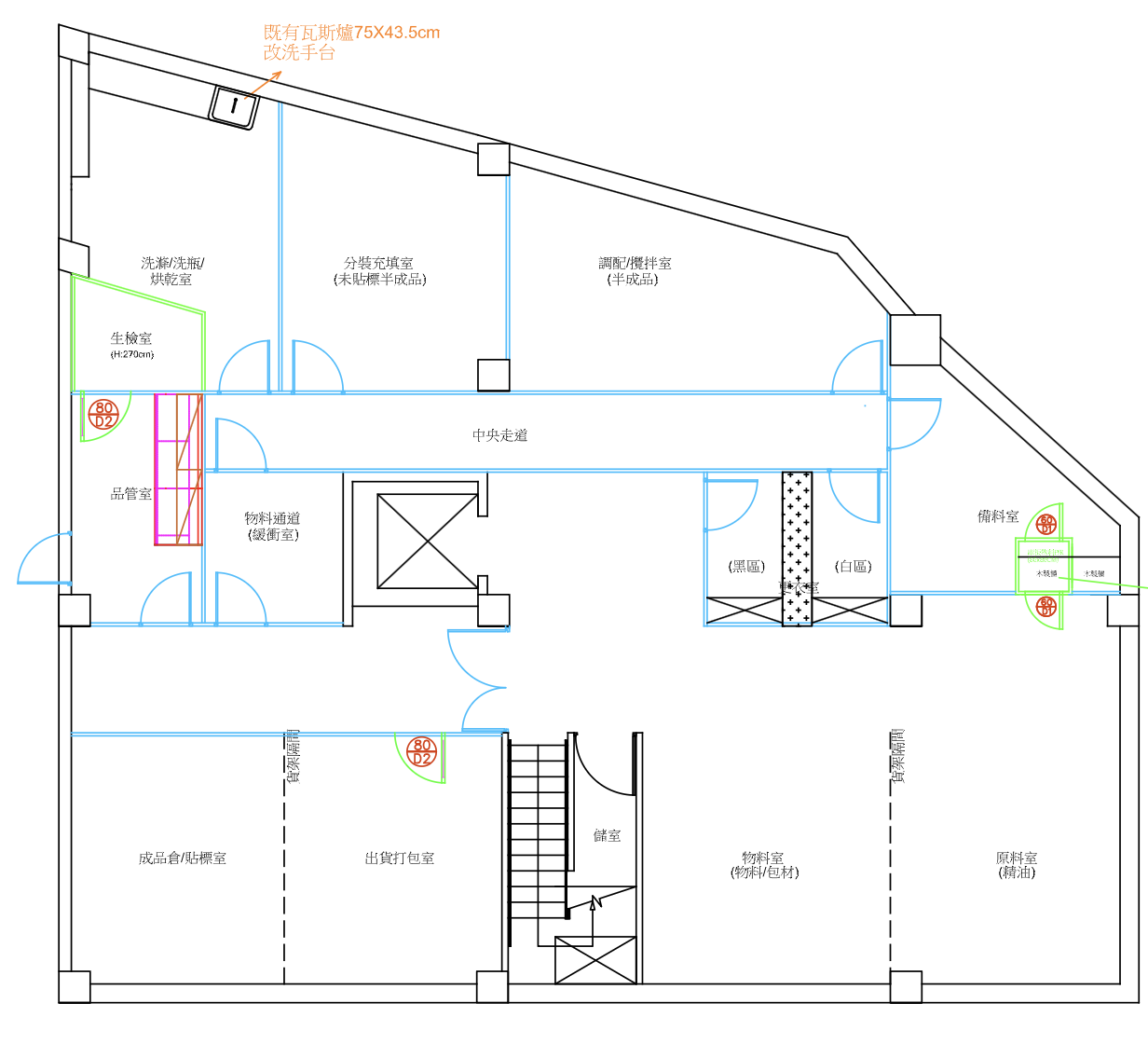
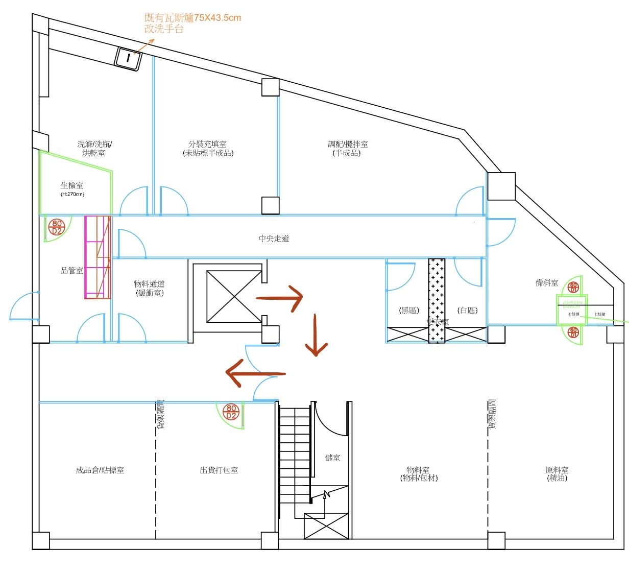
- 本廠之作業場所規劃分為儲存區、生產區、品管區、附屬設備區、洗滌區等,廠區規劃圖如附件1。規劃時確保收貨、儲藏與生產等作業空間已足夠,並預防工作程序之差錯與混雜。限制進入人員進出區域,應予門口加以標示或進行出入管制。
- 訪客與未受訓練人員,應儘量使其不進入生產、管制與儲藏區域。如無法避免者,應事先告知相關資訊,特別對於有關人員衛生與防護衣物之規定,並予以密切督導,管制規定依照【訪客管理程序】實施。
- 明確界定原物料、產品及人員於廠房內之動線,並適度分離,以防止交叉混雜情形。人員、原物料、成品動線規劃如附件1。可允許人員物品自較高潔淨等級作業區移動至較低潔淨等級作業區,若從較低潔淨等級進入至較高等級,則須經過設置緩衝區,人員透過更衣、洗手或消毒、氣浴等方式清潔。物品進行更換包裝或清潔等作業方式進行管制。
- 生產區內之地板、牆壁、天花板與窗戶之設計與製造,應採易於清潔且抗腐蝕性清潔劑之材質,並保持清潔及良好修繕,必要時應消毒。
- 窗戶係採對外開啟者,有適當之阻隔或緊閉措施。管制作業區不設窗戶或窗戶應於以封閉,以避免造成污染。
- 本廠提供人員適當且清潔之洗滌、盥洗設施並應提供合適更衣設施,其設施並與生產區有所區別且易於使用。
- 廠區應設置充足照明,以利該區作業之需求。管制作業區內的調製區、充填區、秤料區、前處理區,設置應確保照明設施不因破損而致碎片掉出,並有足以防止產品受未適當清潔之照明設施污染之措施。
- 生產作業場所之通風與空調管理作業,依照『廠區通風管理作業標準』執行。
- 作業場所之電力系統維護作業,統一委託外部機電技術公司進行,維護項目包括定期巡檢與年度檢查。
- 廠區所設置管線、排水設備與管道,應防止原料、產品、設施與設備之表面遭滲漏或冷凝水之污染,排水設備並應有防止回流設施。
- 作業區設計應避免屋頂橫樑、管道與導管暴露,若無法避免時,應避免直接接觸牆壁。
- 廠房設施之清潔與消毒依『廠區清潔及消毒作業標準』執行。
- 廠房設施應維護並妥適保養,依『廠區維護管理作業標準』執行。
- 廠區內消耗品應經選擇,為不會造成產品污染而危害人體之類型。依照『工具與耗材衛生作業標準』執行。
- 廠房設計上應能防止昆蟲、鳥類、鼠類與其他害蟲之進入之裝置,並依『廠區蟲害防治作業標準』進行防治。戶外環境並應有避免吸引或藏匿蟲類之適當措施。
- 原物料進入潔淨作業區之規定:
16-1. 含紙箱之包裝原物料,需將紙箱拆除,放在台(推)車上,車輪經適當清潔後,由緩衝區進入潔淨作業區。
相關文件:
- 訪客管理程序(GQP-M-05)
- 工具與耗材衛生作業標準(GWI-P-08-01)
- 廠區清潔及消毒作業標準(GWI-P-08-02)
- 廠區蟲害防治作業標準(GWI-P-08-03)
- 廠區維護管理作業標準(GWI-P-08-04)
- 廠區通風管理作業標準(GWI-P-08-05)
附件:
- 廠區平面暨動線圖:1樓物流平面配置圖

- 廠區平面暨動線圖:地下1樓物流平面配置圖

- 廠區平面暨動線圖:地下1樓物流平面配置圖

